Moderne og spennende enebolig i et attraktivt boligområde!

 

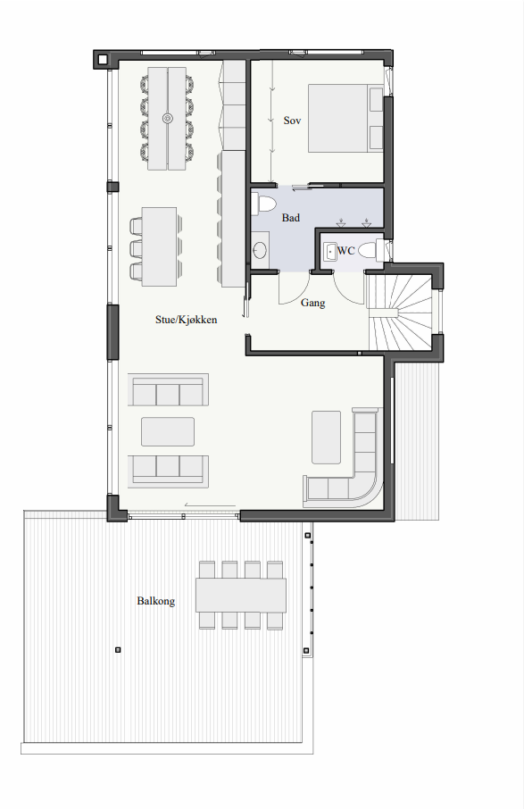
Velkommen til en ny, moderne og gjennomtenkt familiebolig i Fullhammersvingen 9. Her får du praktiske løsninger som favner hele familien. I første etasje ligger tre gode soverom, egen tv-stue, bad, vaskerom og teknisk rom — alt lagt til rette for en funksjonell og komfortabel hverdag. I andre etasje – et lyst, åpent oppholdsrom hvor stue og kjøkken flyter i ett, med store vindusflater og utgang til en romslig terrasse med pergola og glassrekkverk. Her kan du nyte utsikt, lys og godt med luft. Kjøkkenet er fra Sigdal, og peisovnen er en stilren Nordpeis Praha. Gjennomgående 1-stavs eikeparkett, downlights i alle tørre rom og baderom med store fliser gir et helhetlig og kvalitetsrikt uttrykk.

 

Tomten ligger høyt og fritt til på boligfeltet Skarbekken – du befinner deg bokstavelig talt «på toppen», med umiddelbar nærhet til vakker natur og svært gode solforhold. Boligfeltet er nyetablert og under utvikling, med flotte uteområder og lekeplasser som gir et trygt og rolig bomiljø.

 

Bare et steinkast unna har du flotte tur- og joggemuligheter — rett utenfor stuedøren finnes stier som tar deg gjennom naturen. Det er gangavstand til idrettsplass, skoler og barnehager, og om du ønsker en litt lengre spasertur ligger sentrum av Jørpeland kun ca. 20 minutter unna.

 

Skarbekken-området byr på et barnevennlig og fredelig bomiljø. Feltet ligger høyt med gode utsikts- og lysforhold, samtidig som du har tilgang til alle nødvendige fasiliteter i kort avstand. I nærområdet finner du både grunnskole og barnehager, idretts- og fritidsanlegg samt fine turområder som inviterer til aktivitet og rekreasjon året rundt. Boligen gir deg dermed både rolig boligkvalitet og nærheten til urbane tilbud.

Kontakt Oddvar Østrem

Salg bolig/fritidsbolig/tilbygg

Telefon: 982 93 525 Epost: oo@ryftre.no


    Dette skjemaet er beskyttet av reCAPTCHA, og Googles personvernerklæring og vilkår for bruk gjelder.