Kort om prosjektet

 

Velkommen til Gullbekkparken – et nytt, familievennlig boligprosjekt med fire rekkehus og moderne løsninger. Her bor du i rolige omgivelser med kort vei til skole, barnehage, butikk og turområder.

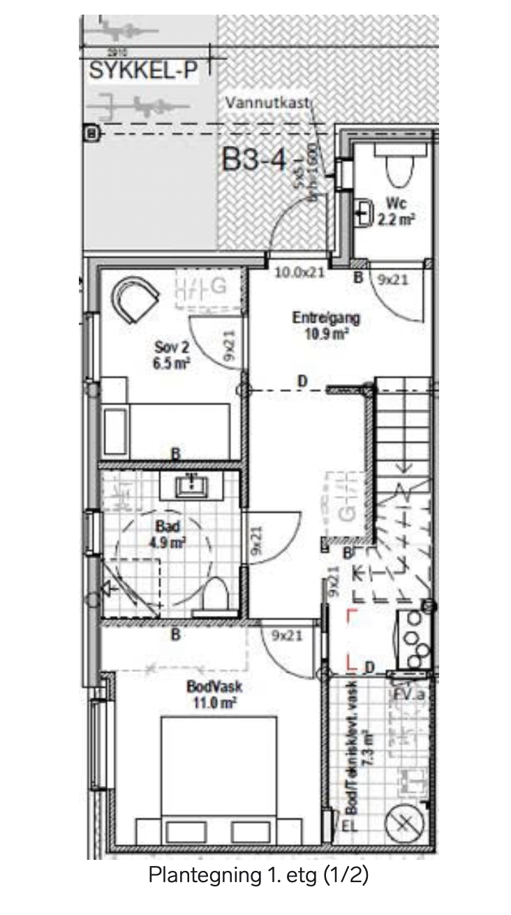
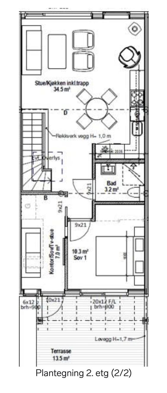
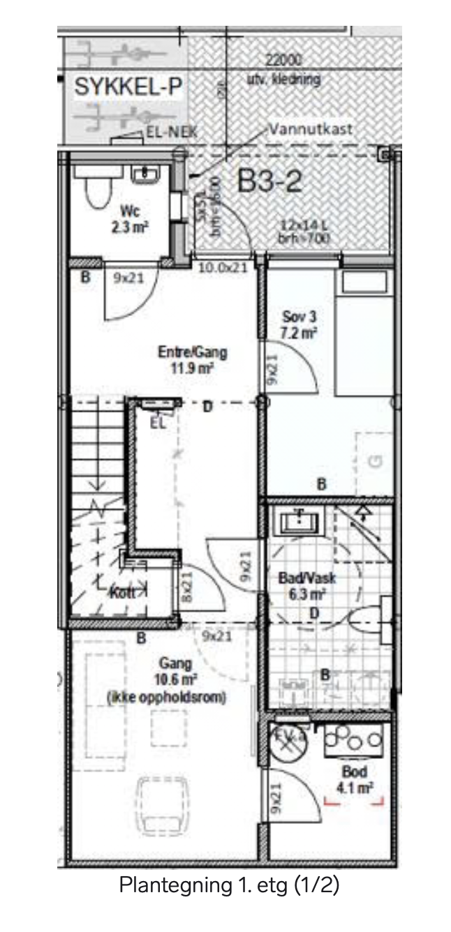
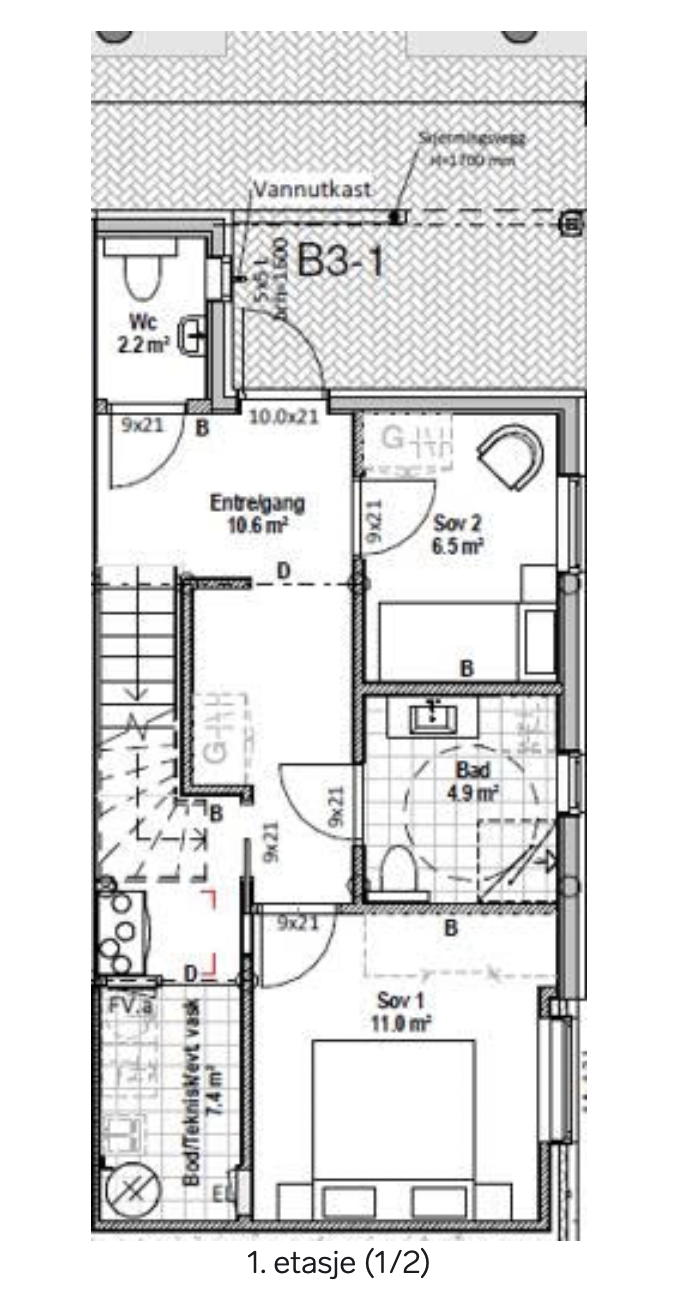
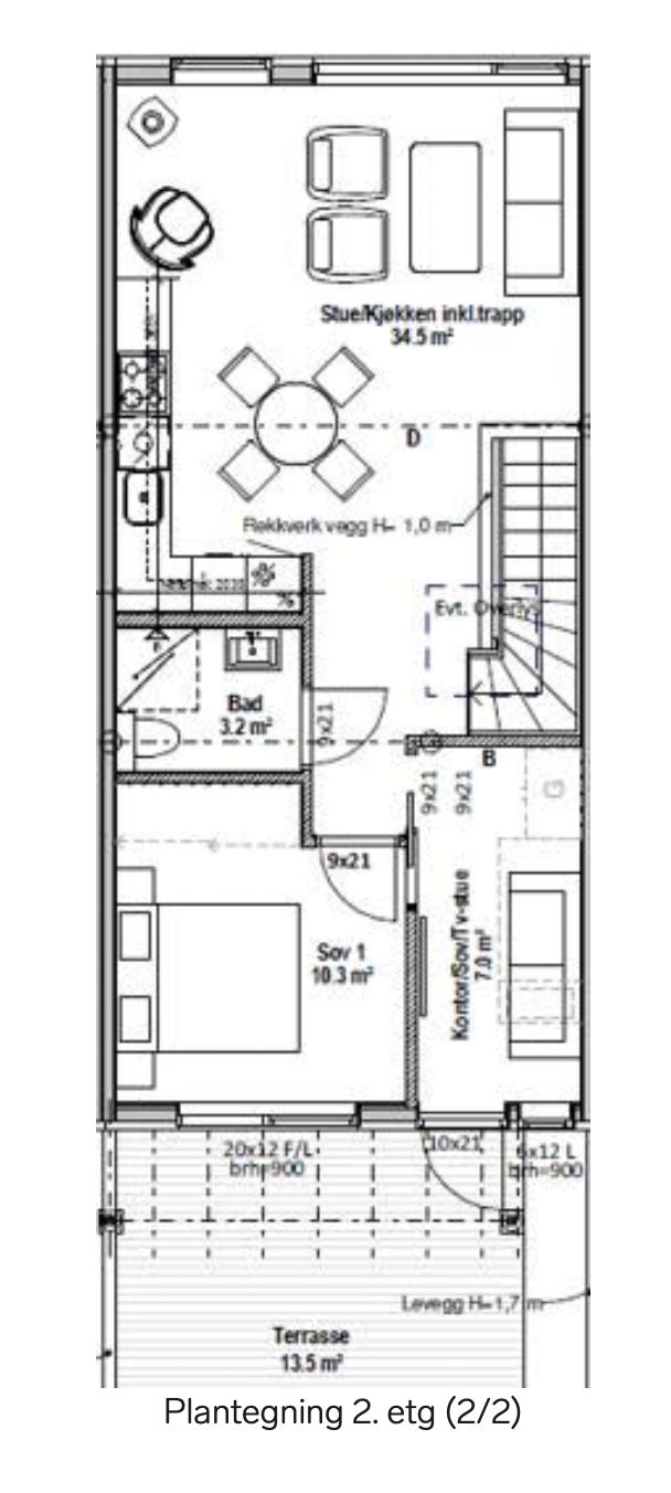
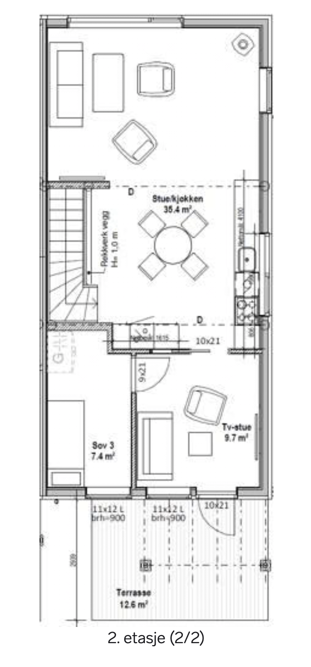
Boligene går over to etasjer og har lyse oppholdsrom, god planløsning og fleksible muligheter. I hovedetasjen finner du stue/kjøkken i åpen løsning, ett soverom og en TV-stue som enkelt kan brukes som ekstra soverom. Underetasjen rommer flere soverom, bad, separat WC og bod. Det er ulike planløsninger avhengig av plassering – se plantegninger for detaljer.

 

Gode materialvalg og moderne standard

 

  • Parkett i stue og soverom
  • Gipskledde vegger og himling
  • Åpen stue/kjøkkenløsning
  • Privat terrasse med levegg
  • Carport og sportsbod
  • Royalimpregnert kledning
  • Lavt vedlikeholdsbehov

Nærmiljø

 

Gullbekkparken har kort vei til kollektivtransport og servicetilbud – og ligger sentralt til på Tau. Kun 150 meter til nærmeste bussholdeplass, og under 1 km til flere skoler og barnehager. Det er også kort vei til Stavanger.

 

Pris og betalingsbetingelser

 

Salgspris er oppgitt pr. boenhet. Maler- og gulvpakke: kr 220 000,- (valgfritt).

 

I tillegg til kjøpesum tilkommer:

 

  • Dokumentavgift 2,5 % av tomteverdi
  • Tinglysningsgebyr skjøte
  • Tinglysningsgebyr panteobligasjon
  • Eventuelle rekkefølgekrav fra Strand kommune

Betalingsbetingelser:

 

  • 5 % ved signering
  • 20 % ved støpt ringmur
  • 35 % ved tett bygg
  • 30 % ved klar for innvendig malerarbeid
  • 10 % ved overtakelse

Kontakt Aleksander Amdal

Daglig leder

Telefon: 959 90 825 Epost: aa@ryftre.no

Meld din interesse i dag!


    Dette skjemaet er beskyttet av reCAPTCHA, og Googles personvernerklæring og vilkår for bruk gjelder.